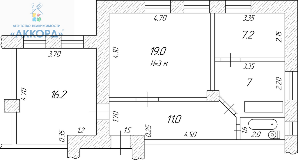
В продаже трехкомнатная квартира в двухэтажном кирпичном доме.

В квартире сделан косметический ремонт:

– Пластиковые окна

– Стены и потолки выровнены (потолки высокие)

– Ванная комната и санузел совмещенные

– Звукоизоляционная дверь

Комнаты изолированные, остается часть мебели.

Крыша дома отремонтирована в 2024 году.

Возле дома сарай, огород, есть 2 гаража .

Инфраструктура района развита:

– Три школы

– Детский сад

– Магазины

– Медицинская клиника

– Спортивный центр

– Остановки общественного транспорта

Проблем с парковкой во дворе нет.

Просмотр в любое удобное для Вас время!

Подходит под ипотеку!

Работаем со всеми видами сертификатов!